







Louver window

On site - April 2023

Section studies

Model


Variable window Making

Sketch during construction supervision


Variable window alternatives

Section sketch

Site visit - Analysis of local context

Texture_stone
| 용도 | 단독주택 |
| 위치 | 서울시 종로구 행촌동 + |
| 면적 | 73 ㎡ |
| 규모 | 지상 3층 |
| 기간 | 2023. 02 - 2023. 05 |
| 협력 | 진경설비, 쿠마라인 |
| 발주 | 곽준규 |
| 시공 | 공정도가 公正都家 |
| 사진 | DRAWING WORKS |
| 진행 | 준공 |
성곽마을 골목 갤러리, 돌집
마을 외곽으로는 사직단, 경희궁, 독립문과 서대문 형무소 등이 있으며, 마을 내부에는 딜쿠샤와 바로 옆 600년 가량된 행촌동 은행 나무를 비롯, 홍난파가옥 등 많은 문화유산이 있는 반면, 민가는 조선 후기부터 나타난 자생적인 한양도성 바깥마을이다. 1897년 독립문 건립 이후 1930년 전후에 시가가 형성되기 시작했고 1978년 성산고가도로가 생기며 필지에 변화가 생기기 시작했다.
1930년대 이후는 초가집과 판자집으로 변화가 없었지만 사직터널(1969) 개통이후 시민아파트, 맨숀 등이 지어지고 1990년대에 들어서며 주거환경개선지구로 선정되어 주택 유형에 변화가 생기기 시작했다. 그중 하나인 1997년에 지어진 3층 주택을 건축주가 매입했다.
삶의 공간
행촌동 집은 층당 25-31제곱미터씩 세개층으로 이루어진 집이다. 건축주 부부는 젊고 예술과 디자인에 관심이 많다. 남편은 제품 기획 관련 일을, 아내는 갤러리에서 큐레이터로 활동하고 있다. 집에는 소장해둔 그림을 걸 수 있는 곳이어야 하며, 공간이 좁아서 불편할 수 있지만 불편함보다는 움직임을 통해 집에 생기가 생길거라 믿으며 집을 고치기로 했다.
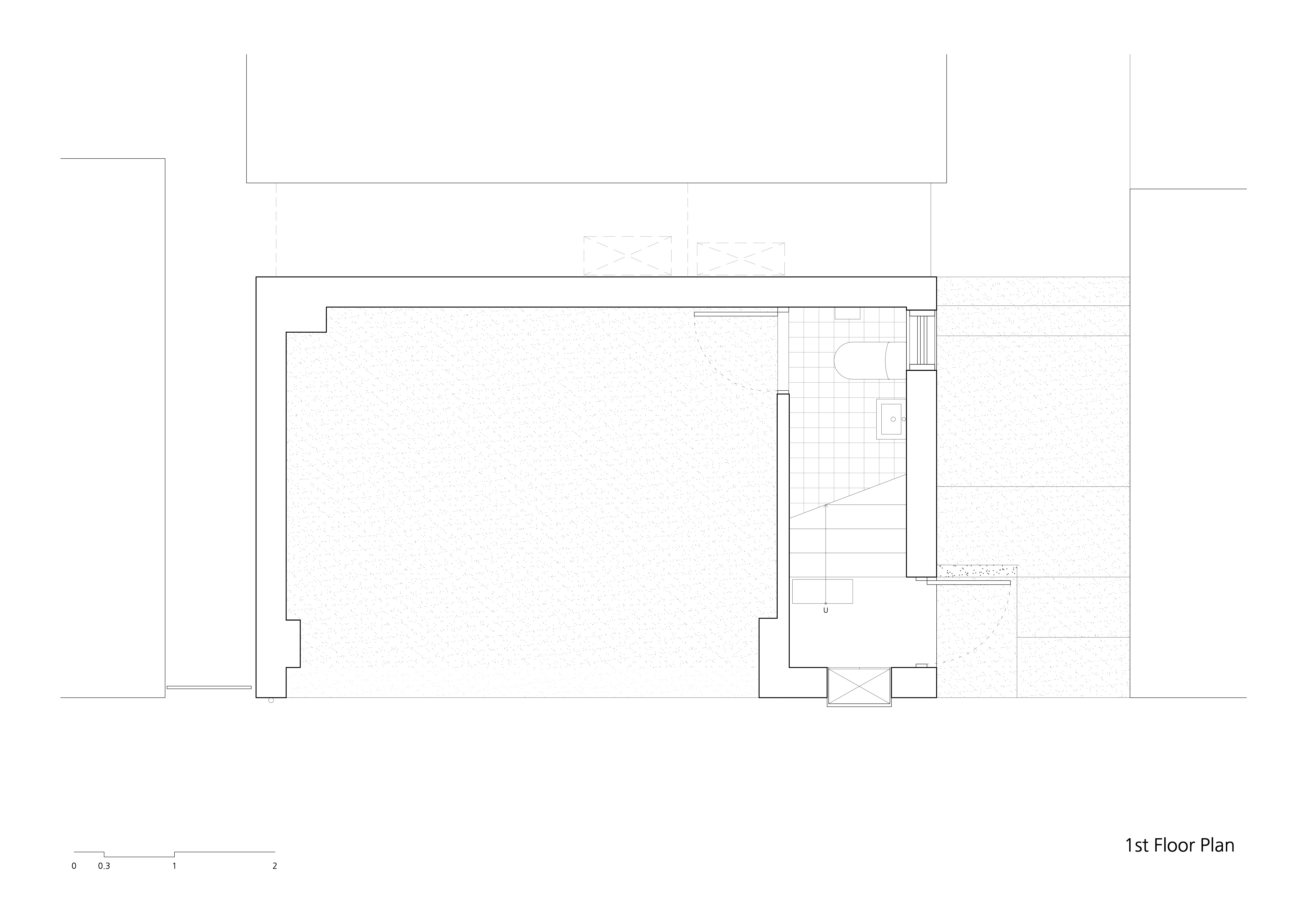
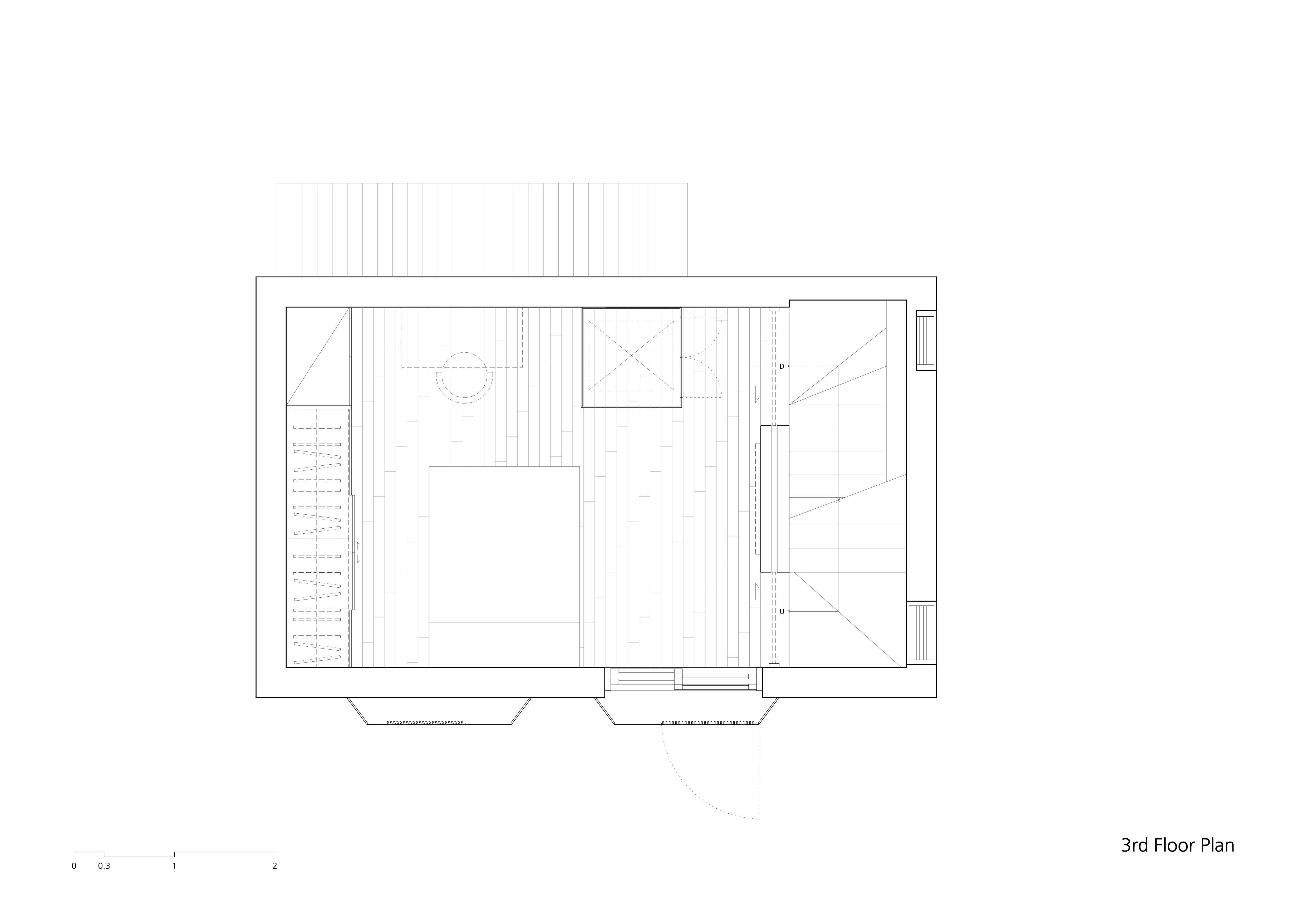
1층은 도로에서 직접 출입이 가능한 주차장이지만 작업실 또는 작은 갤러리로 이용 가능성이 있다. 좁은 길에 면한 4층 이내의 다세대 다가구주택이 이어지는 풍경에 골목 갤러리를 기획하여 일상속 예술을 실천하며 예술 속에서 살아가는 사람들이 많아지길 기대한다. 내부 공간은 협소한 주택이기에 계단실이 전층을 관통하며 공간을 연결한다. 1층 현관에서 2층으로 올라가면 거실겸 주방 그리고 화장실이 있다. 기존에 화장실이 있던 자리를 철거하여 주방 가구를 확장했고 화장실은 가장자리로 이동했다. 3층에는 침실이며 세탁실을 포함했다.
주 생활 공간은 작은데 창이 여럿 있어서 층별로 창은 하나씩만 두기로 했다. 더구나 맞은 편 집과 시선이 교차되어 생활에 불편하기에 외부에 창살을 설치해서 차단을 한다. 창살을 통해 밤에는 불빛이 새어 나온다.
기후변화로 봄 가을이 짧아진다지만 여전히 한국의 사계절은 특별하다. 창에서 보이는 경관에는 건물이 밀집해서 자연이 함께 하지 못한다. 집을 통해 사람들의 삶을 디자인하기 위해 자연과 정원과의 관계는 중요하다. 다행이도 풍부한 생활을 만드는 옥상이 있어 정원을 가꿀 수 있으며 인왕산과 성곽을 바라보는 경치가 아주 훌륭하다.
무명의 건축을 보전하는 발상
익명의 시공자가 지은 집을 우리 사회에서 주목한적이 있을까? 사회적으로는 커녕 건축계에서도 담론의 대상 조차 되지 못한채 철저한 익명의 건축으로 존재해 왔다. 가벼운 의미로 여기는 경우가 많지만 그들이 만든 건축은 도시의 풍경을 만들고 거주 환경에 영향을 미쳤기에 오늘 날 우리는 흥미로운 시선으로 보아야 한다. 그리고 그들로 하여금 발생된 지역성이 삶에 미친 영향을 생각한다면 리모델링을 하는 시점에서는 보전을 하는 방식도 고려해볼만 했다.
행촌동에 무명의 건축가가 집을 지어준다면 동네 사람들에게 통용될만한 모습을 보여줬어야 할것이다. 우리가 계획하는 대상은 성곽이 바로 곁에 있어 돌을 켜켜이 쌓은 마감 방식은 당시의 시대상을 담았고, 작은 필지에 지어진 평범한 주택이다. 납작하고 거친 돌을 켜켜이 쌓았지만 주로 노란색을 띄는 모습이 부드러운 인상을 보이며 매력적이었다. 그래서 우리는 이 집의 외형을 이루는 돌은 보존 가치가 있다고 생각했다. 또 하나의 특징을 가지는 외부 창호는 화강석을 세겹으로 하고 양 모서리를 빗각을 쳐서 창틀을 매달아 이중창의 역할을 하고 있었다. 행촌동에는 이런식으로 창을 만든 집들이 많이 눈에 띈다. 이 창 턱은 층별 면적이 작은 집이 주로 있는 마을의 특성상 소품을 올리는 등의 활용이 엿보이며 이웃과의 비교 의식, 그로인한 모방과 동화 심리가 강한 한국인의 국민성과 맞물려 동네 전체에 전파된 산물이다. 화강석에 설치된 샷시는 철거하고 켜켜이 겹쳐진 화강석과 형태를 따르는 목재 창호를 설치했다. 6m 도로를 사이에 두고 있는 다세대 주택과의 프라이버시 때문에라도 간살이 있는 형태의 목재창호는 필요했다. 당시의 건축 양식이라 할 만한 형태를 따르는 미학적 해결책으로 제시된 방법이다.