













| 용도 | 단독주택 |
| 위치 | 서울시 용산구 이태원동 + |
| 면적 | 260 ㎡ |
| 규모 | 지상 3층 |
| 기간 | 2024. 03 - 2025. 05 |
| 협력 | 일맥구조 부창금속 |
| 발주 | 개인 |
| 시공 | 공정도가 公正都家 |
| 진행 | 준공 |
이태원 집
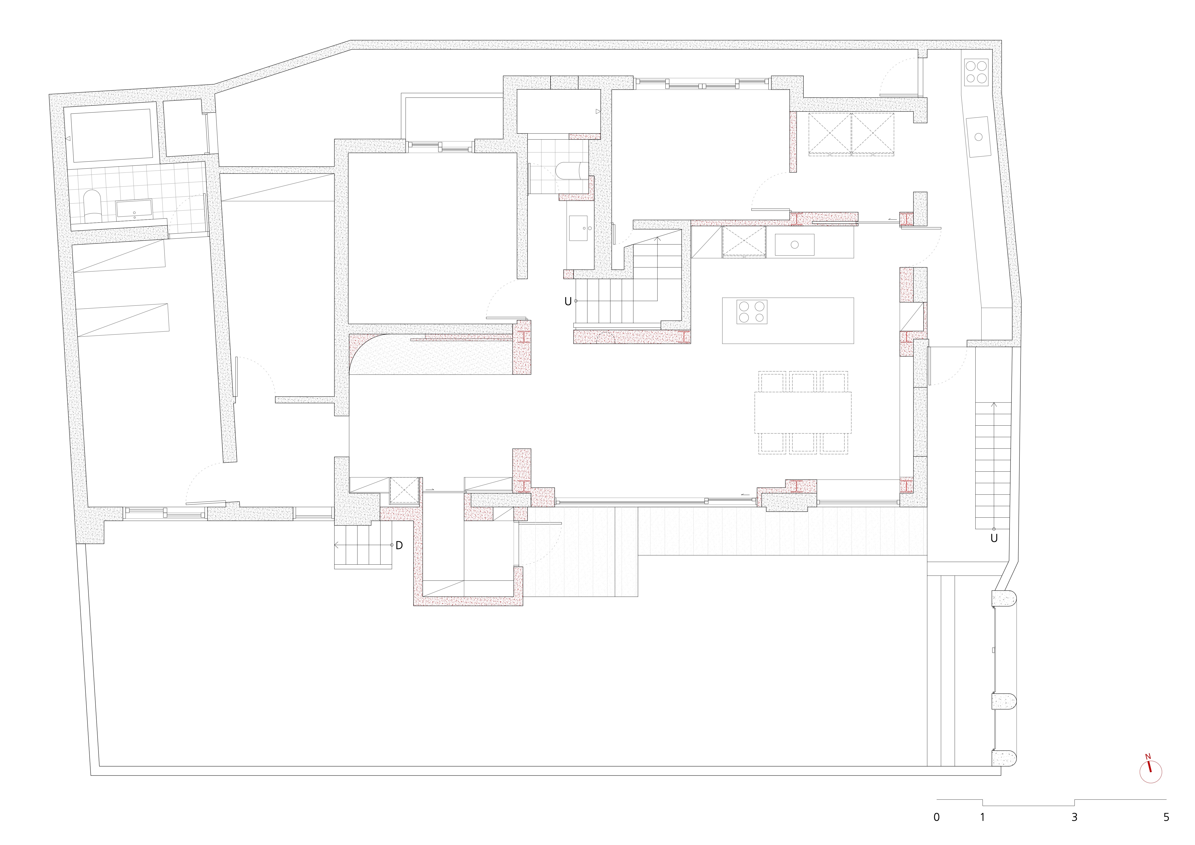
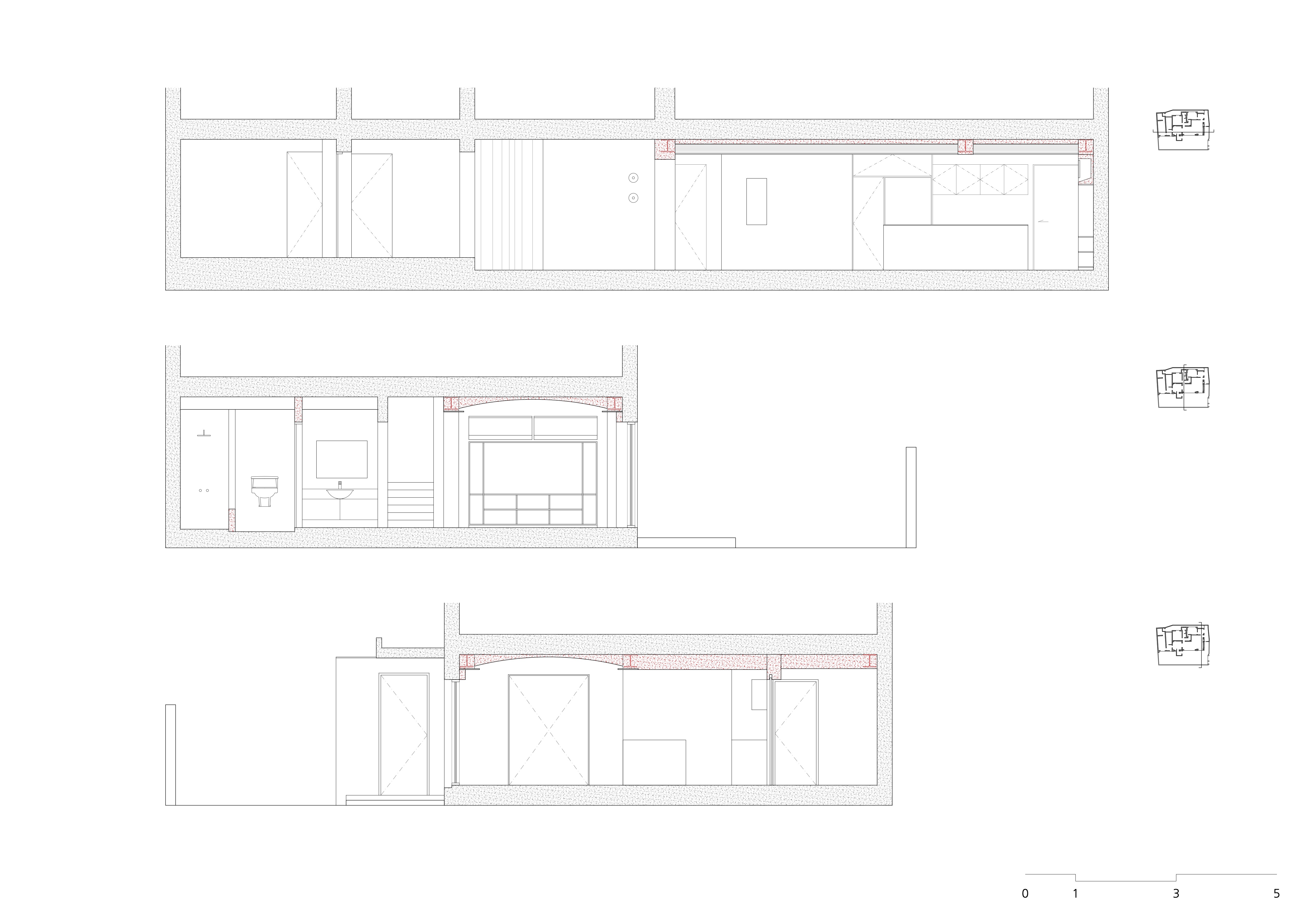
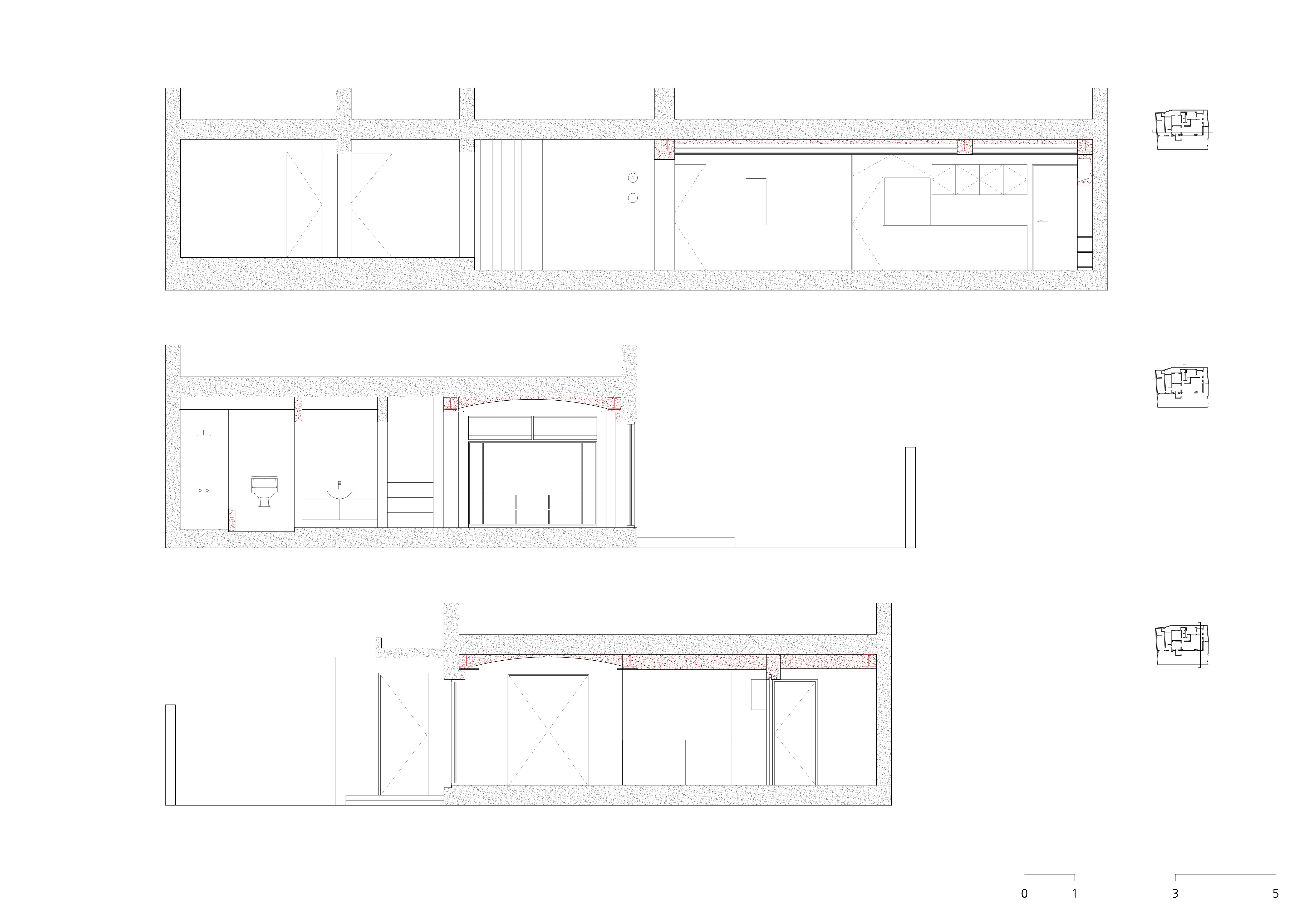
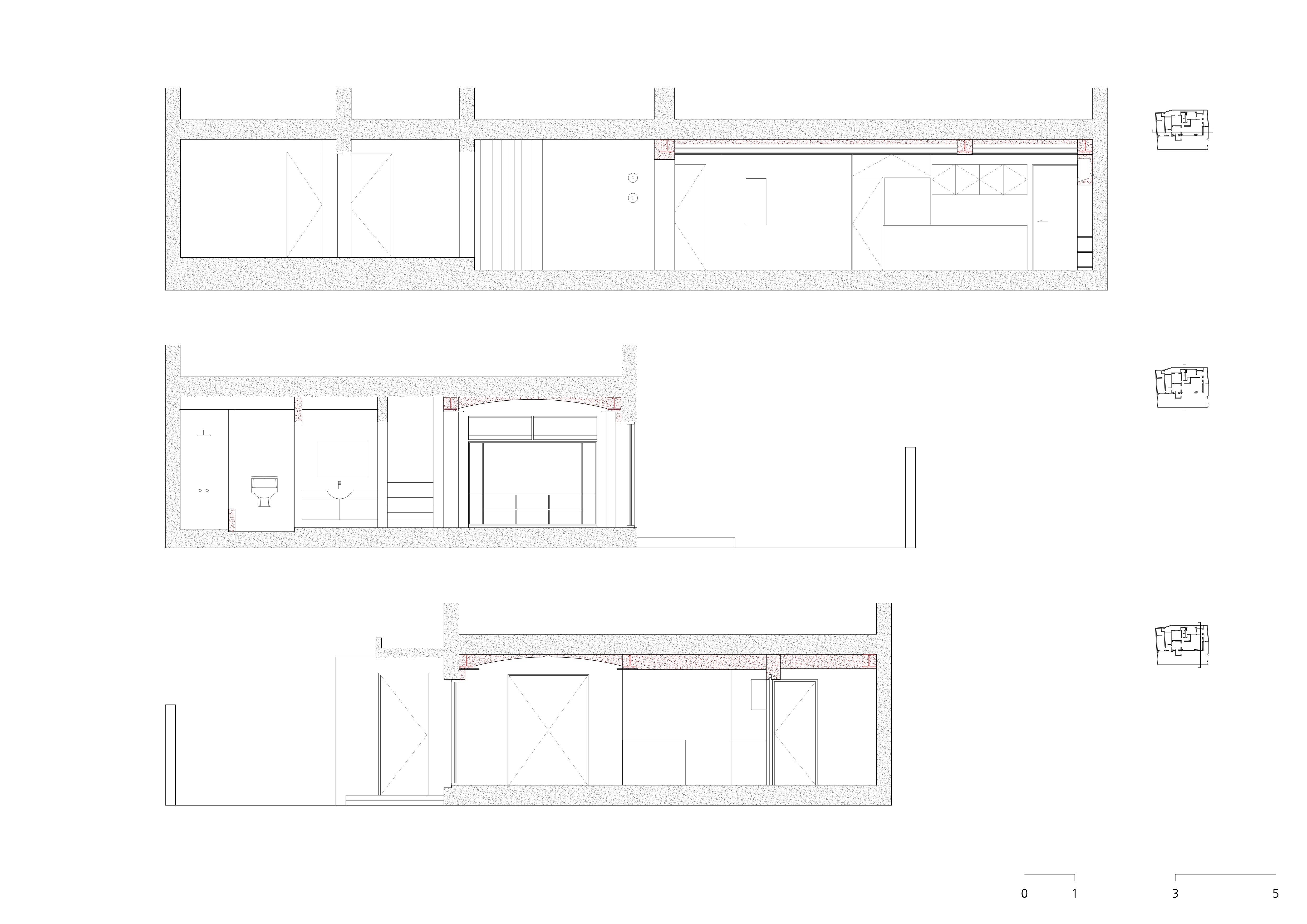
1961년경 지어진 튼튼한 3층 주택은 남산 소월로와 회나무로의 높이 차를 이어주는 위치에 있어, 남산 소월로를 지나가는 길에서 접근할 수 있다. 이 집에는 3대가 함께 살아왔으며, 이사를 한 번도 가지 않아 많은 짐이 쌓여 있다. 이에 집 주인의 바람에 따라, 집의 구조와 분위기를 한 번에 변화시켰다.
삶을 디자인하는 집
건축가로서 집을 설계하며 가장 기쁜 일은 사람이 집에 들어가서 일상의 삶을 누리는 것을 보는 것이다. 집안에 온화한 불빛이 들고, 사람들의 즐거운 삶이 느껴진다면 이 보다 더 좋을 수 없다. 집은 단순한 물리적 공간이지만, 중요한 것은 그 집에서 사람이 어떻게 살아가는지 생각해야 한다. 그래서 집을 설계할 때 사는 사람의 생각 하나 하나를 귀 기울이며 삶을 디자인 해가는 것에 집중한다.
삶의 불빛
기능적인 빛은 부엌 등의 공간에 맞는 적절한 밝기를 제공해야 한다. 분위기를 만드는 빛은 침착했을 때를 보내기 위한 것이다. 생활하며 장면에 따라 필요한 밝기가 달라지기 때문에 식사를 하는 장소에서는 따뜻하고 즐거운 분위기를, 그리고 취침 시간이 가까워지면 서서히 밝기를 떨어뜨릴 수 있는 조명 계획이 이상적이다. 의뢰인과 밝기의 감각을 공유하면서, 그 주택에 적절한 밝기를 제안한다.
빛과 바람을 느끼는 공간
생활 속에 가능한 한 자연의 빛을, 이를 위해 사계절에 따라 변하는 빛, 태양의 위치를 여러 번 상상한다. 그렇게 자연의 빛을 채취하면서 바람의 길도 계산한다. 창에서 보이는 경치, 안으로 비치는 빛, 바람이 통하는 길, 거기에서의 생활이나 사람의 마음을 상상하지 않고 설계할 수 없다.
풍부한 생활을 만드는 정원
기후변화로 봄 가을이 짧아진다지만 여전히 한국의 사계절은 특별하다. 창에서 보이는 경관에 자연이 함께 하고, 거리에도 그렇고, 가능한 한 자연밖에 눈에 들어가지 않도록 하는 것. 사람들의 삶을 디자인하기 위해 자연과 정원과의 관계는 중요하다.