
















@ 6th Gwangju Architectural City Exhibition





NAVER


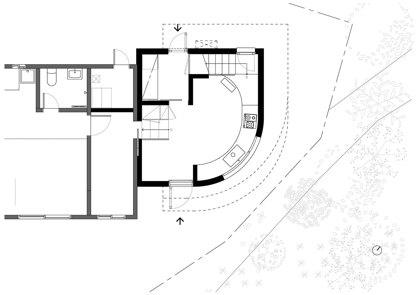
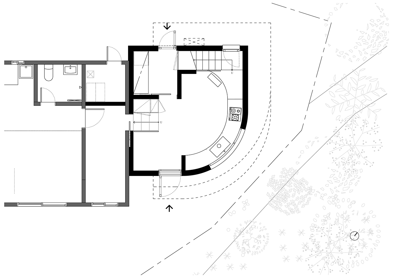
Section

Curved Wooden Structure Detail

On site during - wooden sturucture construction

Model

Section model

Initial sketch

Mass study


On site - September 2018

Aerial photograph
| 용도 | 단독주택 |
| 위치 | 충청북도 영동군 상촌면 고자리 + |
| 면적 | 59 ㎡ |
| 규모 | 지상 2층 |
| 기간 | 2018. 10 - 2019. 07 |
| 협력 | 일맥구조 진경설비 극동전기 |
| 발주 | 개인 |
| 시공 | 아날로그 아틀리에 |
| 사진 | 김재경 ⓒ |
| 진행 | 준공 |
한 사람을 위한 집
진입 도로에서 60m 높이의 가파른 경사를 올라오면 산 중턱에 위치한 670㎡ 대지에 80㎡의 농가 주택이 자리 잡고 있다. 건축주는 인적이 드문 조용한 마을을 찾아 부모님과 함께 살 집을 짓고자 이 장소를 찾았다. 기존 농가 주택은 인테리어를 해서 부모님을 모시고, 본인은 옆에서 혼자 살 집을 짓기로 했다. 새로운 주택의 계획 조건은 1층은 주방 겸 창고로, 2층은 방으로 하되 1층에서 기존 농가 주택과 연결되는 것이었다. 실내이지만 외부공간의 성격을 가지는 1층이 공유공간의 역할을 하고, 2층은 사유공간으로 사용하길 원했다. 사실 처음 이 땅, 그리고 샌드위치 패널 구조의 기존 주택을 보고 어떻게 조화롭게 신축 주택과 배치를 해야 할지, 재료는 어떤 걸 사용해야 할지, 외관은 어떠한 관계성을 가져야 할지 고민이 많았다. ‘조화가 과연 가능한 걸까.’ 결국 기존 주택과는 기능적 동선만 해결하도록 하고 신축 주택은 독자적인 외관을 가지는 것으로 방향을 설정하고 계획을 하였다.
건축주는 미리 평면을 그려 배치와 규모를 가늠하고 각종 친환경 자재와 설비 자료에 대한 연구를 열심히 한 상태였다. 따라서 많은 자료를 살피고 나누며 건축주가 원하는 집에 대한 시공 기술을 함께 고민하며 진행했다. 배치 계획상 건축주가 살 신축 건물은 기존 건물의 우측 안쪽에 자리하게 되었다. 따라서 건축 가능한 면적이 30㎡ 이내인 작은 주택이기에, 가구 위치만 바뀌어도 새로운 평면을 구성해야 했고 여러 대안을 발전해가며 건축주와 모형, 3D 모델링 자료를 주고받아 세세하게 도면을 정리했다. 부모님 사시는 농가 주택의 주방 및 다용도실을 통해 두 주택을 연결하고자 했는데, 대지 경계선과 가까우며 외부 통로까지 고려하다 보니 1층은 20㎡ 정도의 협소한 공간밖에 없었다. 그래서 2층은 캔틸레버 구조로 1m를 확장하여 공간을 확보하고, 곡면 벽을 활용해 제작 가구를 만들어 실용성을 높였다. 또한 곡면 벽을 따라 파노라마로 풍경을 감상할 수 있도록 하였다.
열악한 현장과 시공사의 집념
산 중턱의 땅은 사방이 산으로 둘러 쌓여 있으며 가을 단풍, 특히 설경이 매우 아름다운 곳이었다. 주변의 풍경을 주택 내부로 끌어들이고 자연에 둘러 쌓인 채 명상을 즐길 수 있는 그런 집이다.
단일한 덩어리지만 주변을 향해 부드럽게 감아도는 외벽의 모습은 숲으로의 확장과 연계를 유연하게 받아들이는 모습이고, 반대로 내부에서 곡면 유리를 통해 바라보는 외부의 전경은 다양한 숲의 표정에 시선을 던지게 된다.
이 주택은 산 중턱에 위치하여 콘크리트 공사는 배제해야 했고, 시공사 선정에도 어려움이 따랐다. 작은 건축이지만 실력 있는 시공사를 찾다가 지인의 소개로 만난 시공 소장은 우리에겐 건물이 완공된 지금에서도 너무나 고마운 사람이다. 공사 기간은 총 11주가 걸렸다. 현장이 산중이기에 인근에 숙소를 정해 놓고 공정별로 훌륭한 기술자들이 매달려 완성도 높은 디테일을 구현했다.
철근콘크리트로 바닥을 완성하고 벽과 지붕은 경량목구조를 사용했다. 또한 지붕은 징크, 외벽 마감은 모노쿠쉬를 사용하여 외벽의 곡면을 단정하게 정리하였다. 내부 공간을 계획할 때 1층과 2층의 성격에 따라 다른 분위기로 마감을 하기로 했다. 공유 주방의 성격을 가진 1층의 바닥은 석재 타일을 시공하여 물청소가 가능하도록 하고 벽은 자작나무로 마감하였다. 곡면 벽에 있는 주방 가구는 자작나무로 제작하였으며 싱크대 앞에 서면 바깥 풍경을 볼 수 있다. 신발을 벗고 자작나무 벽을 따라 계단을 오르면 백색의 규조토로 마감한 2층 공간이 펼쳐진다. 동서남북 주요 위치마다 창을 배치하여 마당을 내려다보기도 하고 멀리 산을 볼 수 있다.
숲속에 자리한 작은 건축, 풍경을 담다
건축에서 외관을 만드는 일은 단순히 형태나 파사드를 가리키는 것이 아니라, 내부 공간과 외부 공간의 경계가 어떻게 구성되어 공간을 구축하고 있는지를 정의하는 것이다. 외부 공간과 내부 공간이 어떤 식으로 공간의 경계를 구성하고 있는지는 내부와 외부의 관계성에서 비롯된다. 이 주택의 외관은 땅의 경계로부터 빚어지고 내부 공간과 외부 공간은 곡면의 창호를 통해 관계를 맺고 있다. 대지는 산으로 둘러싸여 있으며 가을 단풍, 특히 설경이 매우 아름다운 곳이다. 주변을 향해 부드럽게 감아 도는 외벽은 숲으로의 확장과 연계를 유연하게 받아들이는 모습이고, 반대로 내부에서 곡면 유리를 통해 바라보는 외부의 전경은 다양한 숲의 표정에 시선을 던지게 하며 주변의 풍경을 주택 내부로 끌어들이고 있다.
A Solo Forest Dwelling
A farmhouse, on a site of an area of 670㎡, sits atop a steep slope at a height of 60m from the access road. The client wanted a house in which to live with his parents so he could move to this remote, tranquil town. He approached us to fulfill the design of a new house in which he might live alone as neighbour to the existing farmhouse, within the confines of the lot owned by his parents.
This house had to feature a kitchen and storage space on the first floor, and a room that connected to the existing farming house on second floor. In other words, he wanted to use the first floor as an open, shared space, and the second floor as a private space.
Before the client met us, he drew up a floor plan to sketch out the arrangement and size, also studying and compiling data to do with various eco-friendly materials and facilities. By examining these findings, he conceived of his desired construction technique ,in partnership with us. Most significantly, we contributed to the detailed drawings, developing six alternatives, sharing a model and 3D modeling data with the client – even though it is a small house.
In light of the planned spatial arrangement, we set upon devising a new building for the client inside the right side of the existing building. The building could be connected to his parents’ home via the kitchen and multi-use room. However, this was close to the perimeter of the lot and because of the outside path the area available to the first floor was only 20㎡, and so we designed 1m of the second floor as a cantilever structure to expand the space and manufactured furniture that adapted to the curved shaping of the walls to improve its practicality. At this same stage, we also opened up the possibility of a panoramic view within the space.
A Problematic Site Faced with a Builder’s Tenacity
Because this house is located in the middle of the mountain, a simple construction technique was required and we had difficulty selecting the right construction company. Although the construction scale was small, we wanted a competent construction company in the capital rather than a local construction company. Finally, we met a manager of a construction company through the introduction of an acquaintance; we are still really grateful to him even after long the construction work has been completed. Selecting the wrong construction company can result in poor outcomes, even if a design is nicely worked out. Construction lasted eleven weeks. We stayed in lodgings close to the construction site, because of the mountainous location, and brought in the best technicians for each construction phase or process. As a result, the completed details were of a very high quality.
For the foundations of the building, we finished the floor using reinforced concrete and applied a light weight wood framing system to the walls and the roof. After that, the roof was finished with zinc and the outer walls were finished with monocouche to neaten up the curved surface of the outer walls. When planning the internal spaces, we decided to create different atmospheres, because the first floor and the second floor have different characteristics. In the shared kitchen we laid porcelain tiles on the first floor, making them easy for the client to clean, while the walls were finished with birch.
The kitchen furniture along the curved wall is made of birch so people can gaze at the outside view in front of the sink. When you go up the stairs lined with the birch walls, after taking off your shoes, you reach the spaces on the second floor. This space was finished with diatomite, which is an eco-friendly material. We installed windows in primary positions in all directions so that the occupants can look down the yard or out over the distant mountains.
A Forest Dwelling in a Monumental Landscape
The clearing here in the middle of the mountain is surrounded by the mountain range, and in addition to the spectacular fall foliage, the winter snowy scenes are incredibly beautiful. You can see the surrounding landscape from inside the house and enjoy moments of meditation in nature. The outer walls that coil softly towards the surroundings seem to expand and draw themselves into the forest. On the contrary, the external view, seen through the curved glass inside the house, makes you gaze out into many faces of the forest.