DRAWING WORKS
Projects
Info
Selected
All
Living
Culture
Public
Objects
Exhibition
News
About
People
Contact
DRAWING WORKS
컨텐츠 검색
태그
건축가김영배
건축설계
사옥설계
건축사사무소
건축탐구집
리틀아씨시
자연과건축
건축설계사무소
김영배
인테리어
드로잉웍스
리모델링
주택리모델링
자연스레
신축설계
건축사무소
건축
주택설계
김영배소장
건축가
최근글
댓글
공지사항
아카이브
×
Interior
Interior
Meetingroom
Drawing_Level_01
Korean ritual culture
Photo zone
Construction drawings
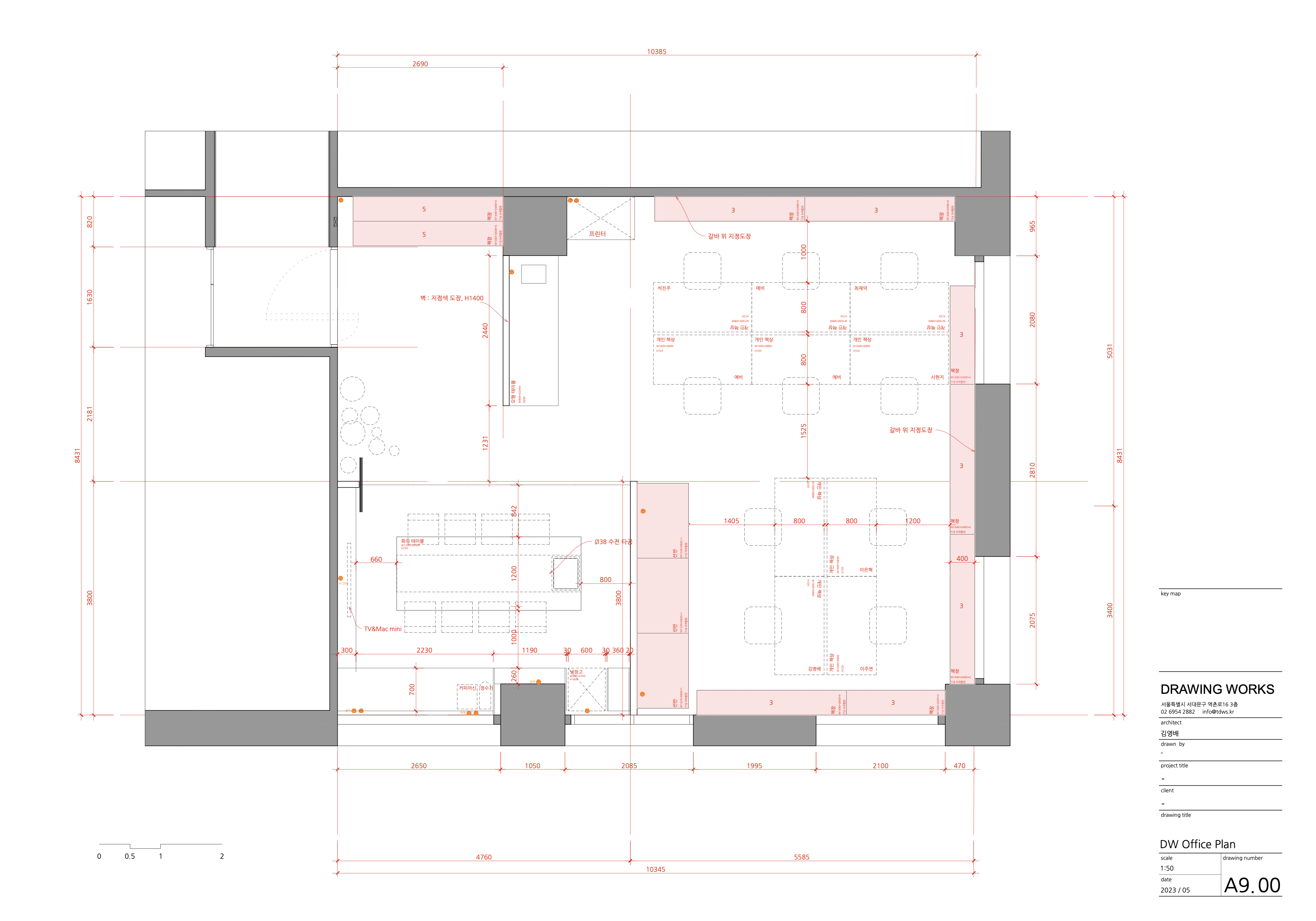
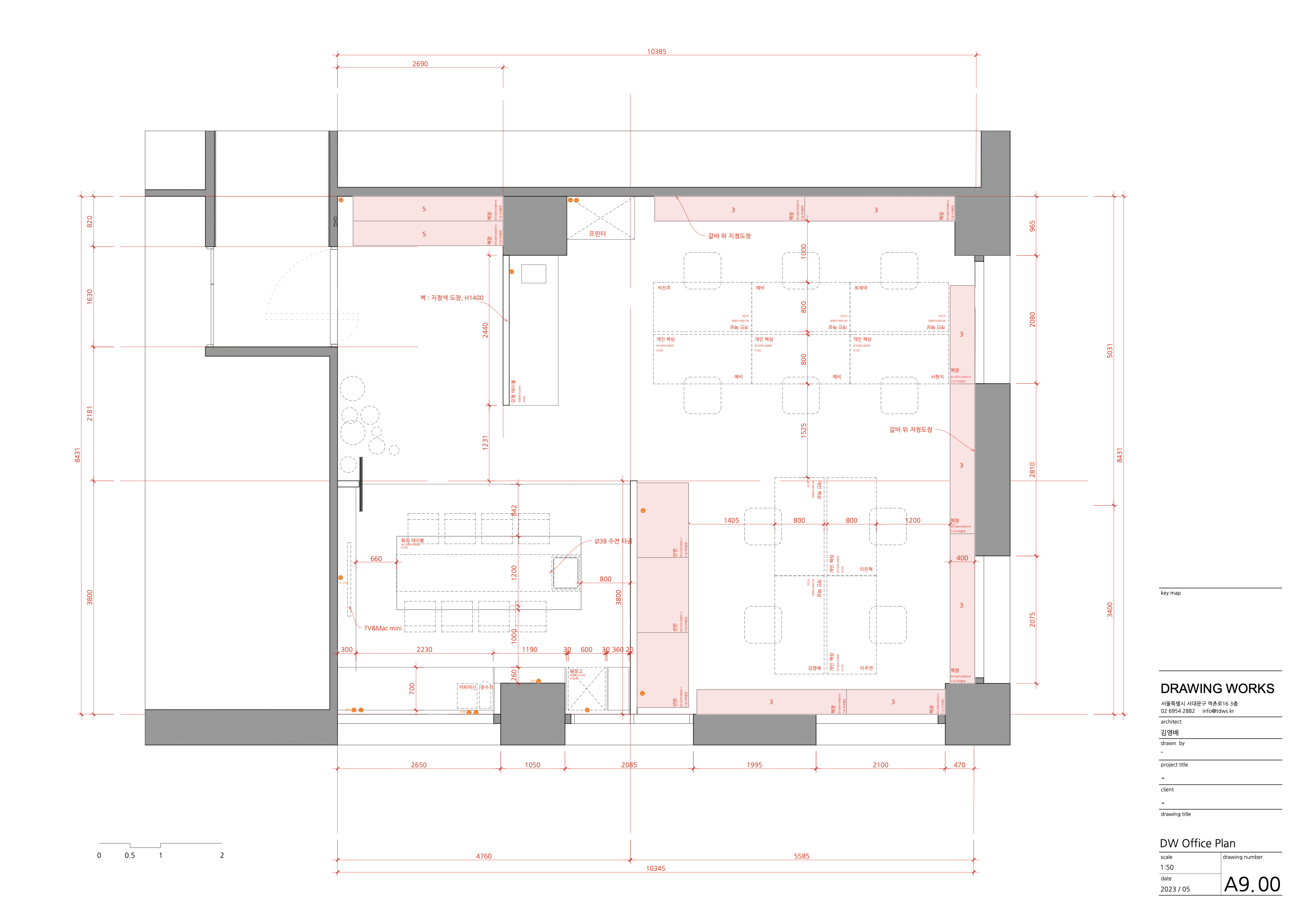
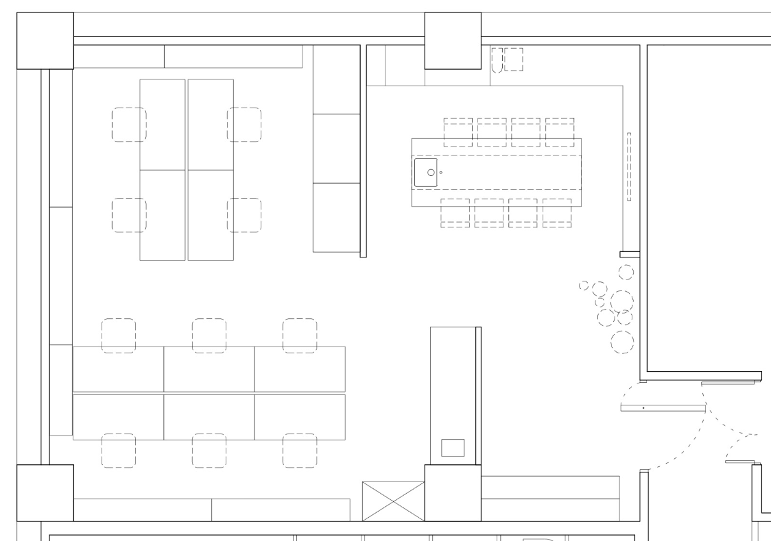
용도
사무실
위치
서울시 서대문구 대현동
면적
85 ㎡
기간
2023. 07
시공
공정도가
公正都家
사진
드로잉웍스
진행
준공
드로잉웍스 스튜디오
공유하기
게시글 관리
DRAWING WORKS
저작자표시
변경금지
(새창열림)
관련글
Giwa, Seoul, 2023-2024
2024.10.02
HongT Lounge, Seoul, 2023
2023.11.19
IGD Concrete, Suwon, 2022
2022.07.05
Urim Garden, Haenam, 2022
2022.05.04
댓글
0
+ 이전 댓글 더보기
티스토리툴바